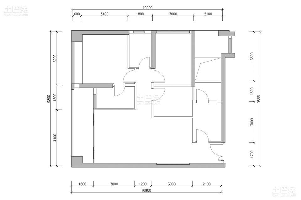
戶型:三居 3#D戶型
- 
                        
                        日期:2016-04-28
                     - 
                        
                        點擊:1429
                     
	戶型:三居 3#D戶型
 
	設計效果圖:



 
	提交信息,試試看!
已有96人提交
找到自家小區,快速獲得現成的設計案例!
                        日期:2016-04-28
                    
                        點擊:1429
                    
	戶型:三居 3#D戶型
 
	設計效果圖:



 
	提交信息,試試看!
已有96人提交